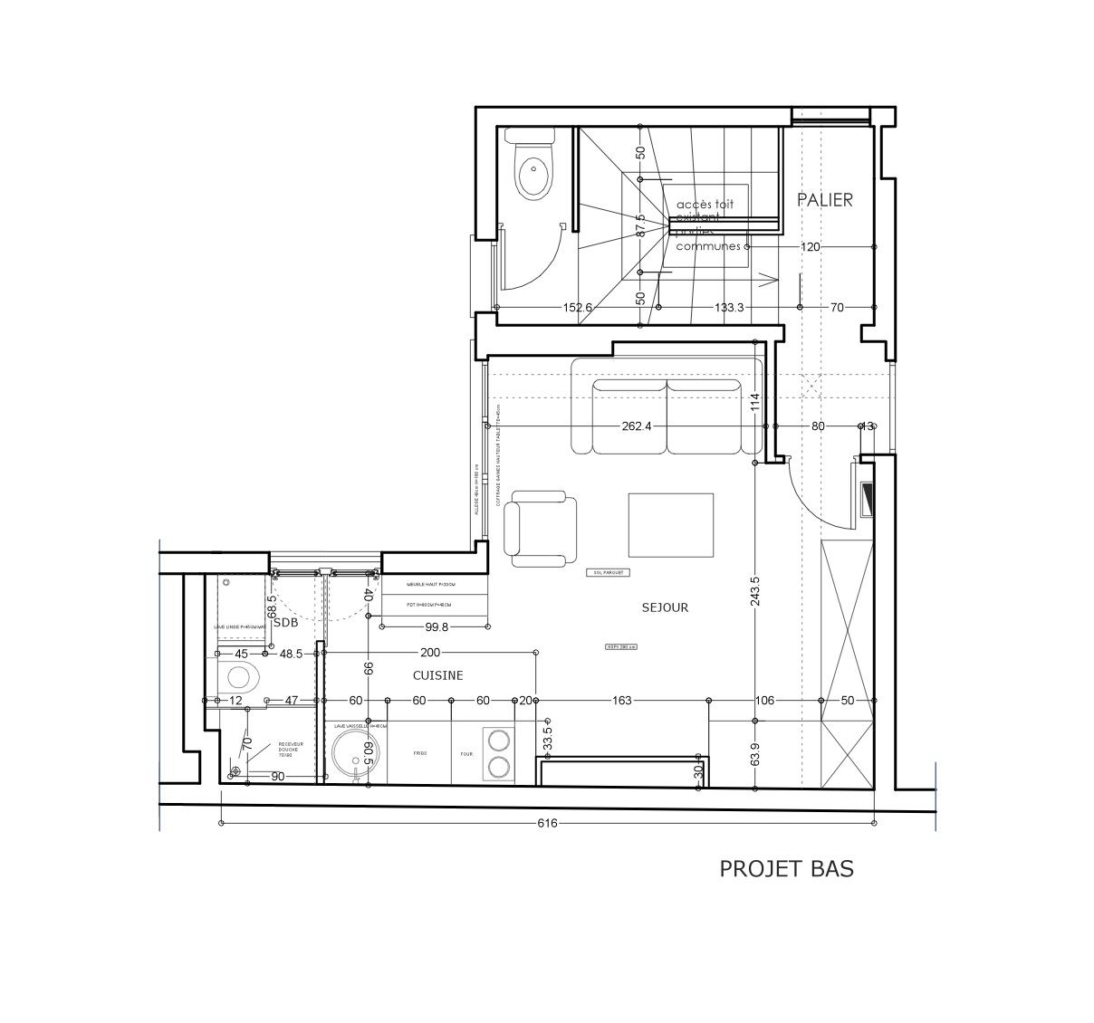
Réhabilitation d’un studio parisien de 19M2.
Collaboration avec l’agence Just’n’nousse Architecture.
Pour cet appartement nous avons récupéré les combles et sommes reparties sur un plateau vide afin d’ammenager au mieux et sur mesure ce petit espace. La double hauteur ainsi récupérée agrandit visuellement l’espace et apporte plus de lumière.




