2 Notes 3 Temps – Les oreilles n’ont pas de paupières.
Diplôme de fin d’études.
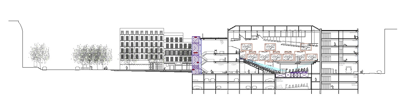
Une salle de Concert Bd Bonne Nouvelle.
Le projet se pose trois questions, chaque réponse à ces questions sont l’intitulé des trois espaces proposés.
– Pourquoi construire un lieu musical au coeur de Paris à l’heure du MP3 ? L’Agora accueille le public en plein air et propose une écoute de la musique plus sociable.
– Qu’est ce que construire pour la musique ?
L’Abri propose une intéraction entre les trois lieux, ouvert sur l’Agora et sur la Grotte, il est un jeu de va et vient entre l’extérieur et l’intérieur.
– Quel est le rapport entre architecture et musique, entre espace et son ?
La Grotte est une salle enveloppante et un espace de partage et d’expression.








